NASZE REALIZACJE / OBIEKTY DROGOWE
wróć do pozostałych kategorii>>
Wykonanie dokumentacji projektowej pn. „Budowa bezkolizyjnego połączenia drogowego ul. Kolejowej z ul. 1-go Maja w Bukownie”
30.04.2019 –
Wielobranżowa dokumentacja projektowa obejmuje swoim zakresem budowę ulicy stanowiącej połączenie ul. Kolejowej i 1 Maja w Bukownie wraz z budową wiaduktu nad torami kolejowymi i przebudową istniejącej infrastruktury. Połączenie obsługiwać będzie przede wszystkim ruch samochodów osobowych oraz służb ratowniczych. Po opracowaniu wielowariantowej koncepcji projektowej do dalszych prac projektowych wskazany został wariant jednoprzęsłowego wiaduktu łukowego z pomostem żelbetowym.
- rozpiętość przęsła: 115,0m
- szerokość przęsła 12,20m
- klasa obciążenia B wg PN-85/S-10030
Zamawiający: Gmina Bukowno. Urząd Miejski w Bukownie
Wiadukt w Bukownie z uwagi na projektowaną rozpiętość przęsła zaliczać się będzie do obiektów o znacznej rozpiętości.
Rozbudowa drogi krajowej nr 11 w zakresie rozbudowy mostu przez rzekę Gwda i mostu przez rzekę Noteć w miejscowości Ujście
08.02.2019 – 04.2021
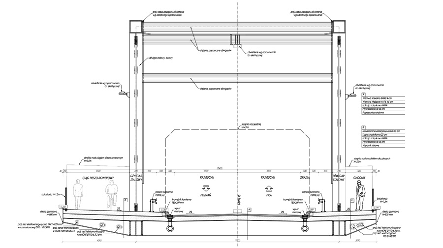
Celem inwestycji jest rozbudowa mostu przez rzekę Gwda i mostu przez rzekę Noteć w ciągu drogi krajowej nr 11 km 190+636 oraz 190+859 w m. Ujście. Zakres inwestycji obejmuje całkowitą rozbiórkę istniejących obiektów oraz zastąpienie je nowymi. Zaprojektowano dwa obiekty łukowe o pomostach zespolonych i rozpiętościach 65,9 m (most na rzece Gwda) oraz 50,0 m (most na rzece Noteć).
- rozpiętość przęsła: 55,50m
- szerokość przęsła 18,18m
- klasa obciążenia A wg PN-85/S-10030
Zamawiający: Generalna Dyrekcja Dróg Krajowych i Autostrad
Oddział w Poznaniu
Na odcinku drogi między mostami zaprojektowano mury oporowe podtrzymujące skarpy nasypów.
Wykonanie dokumentacji projektowej dla rozbiórki istniejącego oraz budowy nowego wiaduktu drogowego nad linią kolejową nr 009 Warszawa Wschodnia – Gdańsk Główny km 295,967 w ciągu drogi gminnej nr 198199G – ulicy Nowy Rynek w Tczewie
18.12.2019 –
Przedmiotem zamówienia jest wykonanie koncepcji projektowych, kompleksowych, wielobranżowych dokumentacji projektowych budowlanych, wykonawczych i kosztorysowych wraz z uzyskaniem wszelkiej dokumentacji formalno-prawnej umożliwiającej zrealizowanie inwestycji polegającej na rozbiórce istniejącego wiaduktu drogowego oraz budowie w jego dotychczasowej lokalizacji nowego wiaduktu drogowego nad czynną linią kolejową nr 009 Warszawa Wschodnia – Gdańsk Główny w ciągu ulicy Nowy Rynek w Tczewie
- rozpiętość przęsła: 55,50m
- szerokość przęsła 18,18m
- klasa obciążenia A wg PN-85/S-10030
Zamawiający: Zakład Usług Komunalnych
Na czas rozbiórki istniejącego wiaduktu i budowy nowego obiektu sieci uzbrojenia zostaną przełożone na tymczasową konstrukcję wsporczą
Rozbudowa drogi krajowej nr 66 na odcinku przejścia przez Wysokie Mazowieckie od km 18+560 do km 22+500.
02.03.2017 – 05.09.2019
Celem inwestycji była rozbudowa drogi krajowej nr 66 na odcinku od km 18+560 do km 22+500 oraz przejście przez rzekę Brok w mieście Wysokie Mazowieckie. Zakres dokumentacji projektowej branży mostowej obejmował rozbiórkę istniejącego i budowę nowego obiektu mostowego w ciągu ul. 1 Maja w km 19+689 DK66.
Zaprojektowano konstrukcję umożliwiającą zwiększenie istniejącego światła poziomego i pionowego zapewniając poprawę warunków przepływu wód powodziowych. Most wykonano w technologii monolitycznej – ustrój w formie płyty żelbetowej. Obiekt posadowiono na palach wielkośrednicowych.
Parametry techniczne:
- rozpiętość przęsła: 14,47m
- szerokość przęsła: 17,80m
- kąt skrzyżowania z przeszkodą: ~46°
- klasa obciążenia: A wg PN-85/S-10030
Zamawiający: Gmina Miejska Wysokie Mazowieckie
Jednostka projektowa: Highway Sp. z o.o.
Inwestor: Generalna Dyrekcja Dróg Krajowych i Autostrad Oddział w Białymstoku
Rozbiórka istniejącego i budowa nowego mostu przez rzekę Jabłonkę w msc. Zambrów Pruszki na drodze krajowej nr 63
18.04.2017 – 07.05.2018
Zakres opisywanego przedsięwzięcia obejmował rozbiórkę istniejącego oraz budowę nowego obiektu mostowego, projekt mostu tymczasowego, przebudowę odcinka DK63 wraz z budową chodników, ścieżki pieszo-rowerowej i zjazdu publicznego do ul. Brzozowej.
Parametry techniczne:
- rozpiętość przęsła: 23,20m
- szerokość przęsła: 14,18m
- klasa obciążenia projektowanego mostu: A wg PN-85/S-10030 i pojazd specjalny kl. 150 dla pomostu
- klasa obciążenia mostu tymczasowego: B wg PN-85/S-10030
Zamawiający: Generalna Dyrekcja Dróg Krajowych i Autostrad Oddział w Białymstoku
Przebudowa mostu przez rzekę Supraśl w miejscowości Supraśl w km 20+631 w ciągu drogi wojewódzkiej nr 676
17.03.2015 – 20.06.2016
Zaprojektowano jednoprzęsłowy most łukowy z jazdą dołem. W projekcie przewidziano wykonanie stalowych dźwigarów łukowych oraz pomostu w formie sprężonej płyty betonowej opartej na ruszcie stalowym. Przebudowywany odcinek drogi o długości 1424,16 m obejmował m.in. budowę chodników, ścieżki rowerowej, ciągu pieszo-rowerowego, budowę przejść dla płazów i małych ssaków, czy zatok autobusowych.
Parametry techniczne:
- rozpiętość przęsła: 72,00m
- szerokość przęsła: 14,12m
- klasa obciążenia projektowanego mostu: A wg PN-85/S-10030
Zamawiający: Podlaski Zarząd Dróg Wojewódzkich w Białymstoku
Rozbudowa mostu przez rzekę Narew w miejscowości Wizna w km 21+649 drogi krajowej nr 64
12.11.2019 – 20.12.2021
Istniejący obiekt składa się z siedmiu przęseł o łącznej długości 182,25 m (194,93 m wraz ze skrzydłami). Zgodnie z zachowaną dokumentacją archiwalną masywne podpory pośrednie wykonane są w formie żelbetowych tarcz, a obiekt posadowiony jest pośrednio na palach żelbetowych. Przyczółki wykonane są w formie klasycznych żelbetowych, masywnych korpusów ze skrzydłami prostopadłymi do osi obiektu.
Projekt zakłada zachowanie istniejącej osi trasy, która przebiega w odcinku prostym. Przewidziano również budowę ścieżki pieszo-rowerowej (po lewej stronie) oraz chodnika (po prawej stronie). Nowy most stały zaprojektowano jako układ pięcioprzęsłowy, ciągły o konstrukcji stalowo-betonowej w technologii zespolonej. Obiekt zostanie oparty na sześciu żelbetowych podporach w tym czterech pośrednich.
Parametry techniczne:
- rozpiętości przęseł: 30,0 +3 x 41,0 +30,0m = 183,00m
- szerokość przęsła: 14,94m
- klasa obciążenia ruchomego: kl I wg PN-EN 1991-2 + STANAG 150
Zamawiający: Generalna Dyrekcja Dróg Krajowych i Autostrad Oddział w Białymstoku







